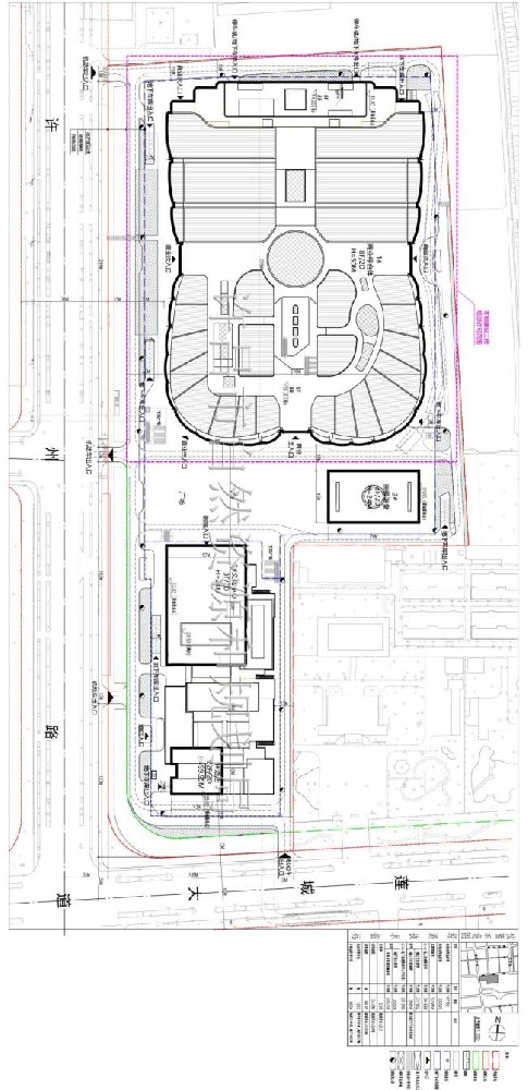
从 “网红超市” 到文旅商业标杆,再到如今斥资 65 亿打造的 57 万㎡超级综合体,胖东来正以 “梦之城” 为支点,撬动中原商业新版图。4 月 7 日,许昌市自然资源和规划局发布公示,胖东来梦之城一期建设工程规划许可进入批前阶段,这座由许昌市胖东来梦之城商贸有限公司主导的项目,总建筑面积达 57.59 万㎡,计划 4 月动工、2029 年 9 月建成,将成为胖东来迄今投资最大、体量最巨的单体工程。工商信息显示,胖东来梦之城商贸公司为集团全资子公司,注册资本 1 亿元,法定代表人冯延军,经营范围覆盖百货零售、餐饮住宿、电影放映、游艺娱乐、酒店管理等全业态。作为胖东来创始人,于东来通过集团间接持股超 69%,牢牢掌控项目主导权。业内人士透露,“梦之城” 是于东来酝酿多年的 “自由之城” 规划落地版,从商标布局到实体落地,每一步都暗藏其重塑商业文明的野心。

长期筹谋:从商标到实体的五年布局
“梦之城” 并非突发奇想,而是胖东来长达五年的战略铺垫。早在 2021 年 3 月,集团便申请注册 “胖东来梦之城” 商标,覆盖餐饮住宿、广告销售、珠宝首饰等 12 大类别,目前 92% 商标已核准注册,为项目全业态运营筑牢产权壁垒。2025 年 11 月,胖东来完成关键工商调整:于东来卸任总经理,仅保留董事长职务,监事会主席冯延军、董事房亚军等核心管理层就位,形成 “创始人掌舵、专业团队执行” 的治理架构。同期,梦之城商贸公司正式注册,冯延军兼任法定代表人,标志项目从概念进入实操阶段。2026 年 3 月,于东来在社交平台官宣项目细节:总投资 65 亿元(全额自有资金,无贷款),总建面约 57.6 万㎡,涵盖 8 层商业综合体、集团总部、大剧院、文化中心、幸福讲堂及高端酒店,由国际设计事务所 Aedas 操刀,外观呈四叶草造型,规划停车位 4293 个(远期目标 8000 个)。此次规划公示,意味着这个 “造福人类的商业工程” 正式获批,即将破土动工。
实力支撑:235 亿销售额 + 41 亿现金的商业底气
胖东来的跨界底气,源于其碾压行业的经营实力。2025 年集团全年销售额达 235.31 亿元,同比增长 38.7%,远超于东来 “控制在 200 亿内” 的预期。其中超市业态贡献 126.43 亿元,珠宝、茶叶分别达 24.51 亿元、10.63 亿元,多业态协同效应凸显。财务层面,胖东来账上持有 41 亿元无贷现金,零负债运营,资金稳健度冠绝实体零售。2025 年员工流失率仅 1.05%,远低于行业平均;基层员工平均月薪 9886 元,95% 利润用于员工分红,3 月更完成 37.93 亿元资产全员分配,管理层与员工各享 50% 权益,筑牢企业发展根基。客流数据更印证其 “顶流” 地位:2025 年国庆 8 天接待游客 450 万人次,销售额 8.2 亿元,超过河南 5 大 5A 景区客流总和;春节 3 天核心门店接待 116.33 万人次,逼近许昌 4A 景区 8 天接待量。从 “超市” 到 “旅游目的地”,胖东来早已完成消费场景的跨界蜕变。
格局重塑:从零售卖场到城市生活新地标
梦之城的落地,标志胖东来正式从区域零售商升级为 “城市生活运营商”。项目选址许昌东城区核心,紧邻高铁东站与高速口,外地游客下高铁即可直达,立体交通辐射中原。一期 46.7 万㎡商业体涵盖超市、百货、电器、影院、餐饮、电玩等全业态,二期将建设文化中心、幸福讲堂,定期举办商业论坛与艺术展览,打造 “商业 + 文化 + 社交” 复合空间。相较于传统综合体,梦之城更强调 “人文属性”:于东来将其定位为 “温暖的爱的摇篮”,不仅是消费场所,更承载企业文化传播、公共文化服务功能。项目建成后,将成为中原最大单体商业综合体,预计年接待客流超 2000 万人次,带动周边就业超万人,彻底改写许昌乃至河南商业格局。从 1997 年的社区超市,到如今 65 亿打造的超级综合体,胖东来用 29 年时间,走出一条 “以善治商、以文兴商” 的独特路径。梦之城的规划公示,不仅是一个项目的落地,更是中国实体零售转型的标志性事件 —— 当行业深陷同质化竞争,胖东来以 “文化 + 商业” 的创新模式,重新定义零售的边界与价值。



![《现代商业》杂志征稿函[list:jibie] [list:zhouqi]](/static/upload/image/20260325/1774416305589324.jpg)
![现代商业杂志2026年3月第6期封面[list:jibie] [list:zhouqi]](/static/upload/image/20260407/1775537050492323.jpg)
![现代商业杂志2026年3月第6期目录[list:jibie] [list:zhouqi]](/static/upload/image/20260403/1775185614847032.jpg)
![现代商业杂志2026年3月第5期目录[list:jibie] [list:zhouqi]](/static/upload/image/20260324/1774340957420670.jpg)
![现代商业杂志2026年3月第5期封面[list:jibie] [list:zhouqi]](/static/upload/image/20260324/1774340912509910.jpg)
![现代商业杂志2026年2月第4期封面[list:jibie] [list:zhouqi]](/static/upload/image/20260323/1774238225477090.jpg)
![现代商业杂志2026年2月第4期目录[list:jibie] [list:zhouqi]](/static/upload/image/20260323/1774238261973988.jpg)
![现代商业杂志2026年2月第3期目录[list:jibie] [list:zhouqi]](/static/upload/image/20260227/1772161561384279.jpg)
![现代商业杂志2026年1月第2期目录[list:jibie] [list:zhouqi]](/static/upload/image/20260130/1769738081701876.jpg)
![现代商业杂志2026年1月第1期目录[list:jibie] [list:zhouqi]](/static/upload/image/20260122/1769069454334303.jpg)
![现代商业杂志2025年12月第24期目录[list:jibie] [list:zhouqi]](/static/upload/image/20251231/1767153035251169.jpg)
![现代商业杂志2025年12月第24期封面[list:jibie] [list:zhouqi]](/static/upload/image/20251231/1767152986285130.jpg)
